Sargent 1431 Series: Powerglide® Heavy-Duty Surface Door Closers & Parts
The Sargent 1431 Series Powerglide® is a premier Grade 1 surface-mounted door closer engineered for high-traffic environments that demand extreme durability. Built with a high-silicon aluminum alloy body and heat-treated rack and pinion, this closer is tested to exceed 15 million cycles (and has been tested up to 25 million), making it one of the most reliable units in the industry. It features a universal body design for standard, top jamb, or parallel arm mounting, and is equipped with all-weather fluid to ensure consistent performance in temperatures ranging from heatwaves to deep freezes.
Sargent 1431 Series
Designed for ease of installation and long-term security, the Sargent 1431 Series features front-facing valves and captured adjusting screws to prevent accidental removal or tampering. This series includes standard pressure relief valves for both opening and closing cycles, protecting your doors and frames from damage caused by forceful abuse or high-wind conditions. With its ADA-compliant design and 30-year limited warranty, the 1431 Series is the preferred choice for facility managers seeking a low-maintenance, "set-it-and-forget-it" door control solution for interior and exterior openings.
View the Sargent 1431 Catalog for detailed arm identification, finish options (like EN Aluminum and EB Dark Bronze), and architectural specifications.
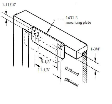
Access exploded-view diagrams of the Sargent 1431 Series Parts Manual for maintenance and repair. This manual is essential for identifying specific component part numbers for replacement arms, covers, and the closer body, allowing you to perform precise repairs that maintain the closer’s Grade 1 performance and UL fire rating.
Sargent 1431 Series
Browse our selection of complete Sargent 1431 units, available with a full complement of arm types to fit any door condition. These closers feature an adjustable spring power from size 1 to 6, allowing you to fine-tune the opening force for ADA accessibility or heavy exterior draft conditions. Popular configurations include the 1431-P9 Parallel Arm for push-side mounting and the 1431-O Standard Arm for maximum efficiency on the pull side.
Sargent 1431 Series Drop Plates
Adapt your door closer with genuine Sargent 351 accessories. This subsection features essential Drop Plates (such as the 351-A, 351-B, and 351-L) designed to solve mounting challenges on narrow top rails or low-ceiling frames. You’ll also find replacement arms, covers, and screw packs to keep your existing closers in peak operating condition while maintaining their Grade 1 certification.
1431 Series Parts
Extend the service life of your existing hardware with our inventory of genuine Sargent 351 parts. We stock essential maintenance components including replacement arms, covers, Thru Bolts, and Screw packages. Using authentic Sargent parts ensures your closer maintains its Grade 1 certification and continues to operate with the precision and safety intended by the manufacturer.
Quick Comparison: 1431 vs. 351 Series
While both are Grade 1 closers, the 351 Series is Sargent's "extra heavy-duty" option, whereas the 1431 is the versatile, high-cycle choice for most commercial retrofits.
| Sargent 1431 Series | Sargent 351 Series | |
| Body Material | Body Material One-piece high silicon aluminum alloy | Body Material Heavy-duty die-cast aluminum (14% silicon) |
| Hole Spacing | Hole Spacing 1 inch x 11-1/8 inches | Hole Spacing 2-1/2 inches x 9 inches |
| Cycle Life | Cycle Life Tested to 15 Million+ cycles | Cycle Life Certified ANSI/BHMA Grade 1 |
| Warranty | Warranty 30-Year Limited | Warranty 25-Year Limited |
| Retrofit Advantage | Retrofit Advantage Directly replaces older 1230/1231 models | Retrofit Advantage Replaces older Sargent 250 models |
| Best For | Best For Commercial retrofits and standard high-traffic | Best For Extra heavy-duty institutional use |
| Arms | Arms Interchangeable with 281 and 351 Series | Arms Heavy-duty forged steel (interchangeable) |